Every situation is different, and there are limitless options to choose from when deciding on a New Home Addition. Here we show a neighbor of yours in Plymouth who was looking to expand the living space for a summer cottage on a pond.
Let’s begin by showing off the 2nd story addition today.

Here we have the hallway at the top of the new staircase leading to the new rooms.

This is the master bedroom in the new addition. The wall color is a Benjamin Moore color called Airway, which is a crisp, blue- violet color with a light, airy feeling.

Here we have the second bedroom in the new addition. You can see the ladder that leads to the loft which can be used for additional sleeping areas or a hang out spot for the kids. The wall color is an eye pleasing blueish- gray called Wickham Gray by Ben-Moore, which really goes nicely with the rustic, warm tones of the plank flooring.


The new bathroom in the addition has a nice, roomy walk-in shower with frameless glass shower doors.

Here we have the remodeled shower in the original bathroom on the first floor. Although not quite as big as the upstairs shower, it is bigger than the original shower which was tiny.


Now we show how it used to look before Russell Mill Remodeling arrived. It’s a summer home on a pond called White Island Pond. The family has lots of get-togethers and does a lot of boating and water skiing. We believe it is an old modular home from the Sears Roebuck catalogue built sometime in the 50’s.

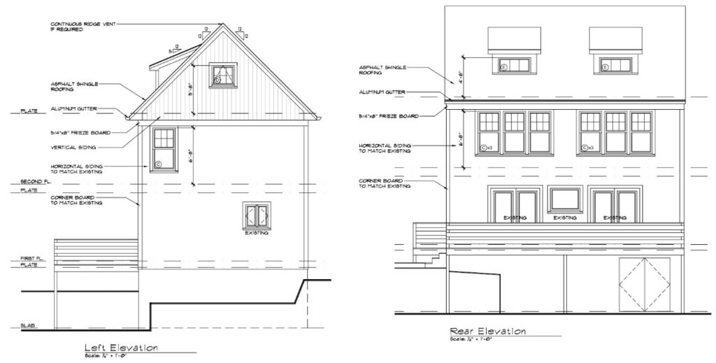
A lot of planning took place before we started including elevation plans and floor plans.



The gable walls are up as we begin the adding of the second story. The second story will include two additional bedrooms, a larger full bath and a loft area for sleeping additional people or kids.

We show the before our arrival to compare once we had all the exterior walls up. We included two dormers on the front and back of the house with windows that could be opened to allow a cross breeze through on days they weren’t using the updated ductless mini-split system we installed, which allows for heating and cooling.


Here we have the new bedroom window openings framed overlooking White Island Pond.

We installed spray foam insulation in the exterior walls on both floors which will make the house more comfortable not only in the summer but in the winter as well with the new heating and cooling system. Before we did the renovations, the house was mostly used in the summer, but now we are sure it will see a lot of use in the winter as well.

The walls boarded and plastered.

Things are moving along with starting the floor. It’s a waterproof and pet proof laminate flooring made to withstand scratching and staining but also with the warmth and character of natural wood flooring.

Welcome to this beautiful 2nd Story Home Addition on the Pond in Plymouth.

Please contact us to discuss your Home Addition needs. Russell Mill Remodeling desires to make your dreams reality.